제주시 한경면 금등리
- 소재지: 제주시 한경면 금등리
- 지역/지구: 생산관리지역
- 도로현황: 2.9m ~ 3.2m도로에서 6.03m 접함
- 대지면적: 327.00㎡
- 건축면적: 49.06㎡
- 건폐율: 15.00%
- 용적률: 15.00%
- 용도: 단독주택
- 최고높이: 4.5m
- 기간: 2023.10 ~ 2024.02

제주시 한경면 금등리 단독주택, 팬션
금번 부지 선정에서 중요하게 생각한 부분은 “숲세권”,“밭 뷰”를 중점적으로 고려하였습니다.
감귤 과수원에서 주도로에 접해있는 토지는 주변 농가 및 감귤 과수원, 삼나무 조망으로 숲세권을 갖춘 모든 요건에 충족한다고 생각하여 선정하였습니다.
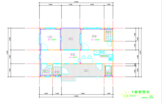
15평의 공간이 협소할 수도 있지만 거주자의 입장에서 최대한 고민하고 설계단계에서 최대한 효율적인 구조를 확보하였습니다.

실내공간 확보를 위한 슬라이딩 도어를 시공하여 방과 거실의 죽는 공간을 없에고 복도형 주택임을 부각시키기 위해 거실 층고를 높여 개방감을 주어 자칫 답답해 보이는 공간을 시원한 개방감을 부여함과 동시에 조명으로 높은 천정고에 안정감을 주었습니다.



주택의 층고를 높임으로 작지만 커 보이는 주택을 표현하며 주변과 자연스럽게 어우러짐을 연출하여 15평의 공간을 활용한 사례입니다.

클릭하시면 큰 화면의 갤러리로 확인 가능합니다.