제주도 대정읍 신도리 개인주택
₩230,000,000 (31py)
* 토지가격별도
- 소재지: 서귀포시 대접읍 신도리
- 지역/지구: 생산관리지역
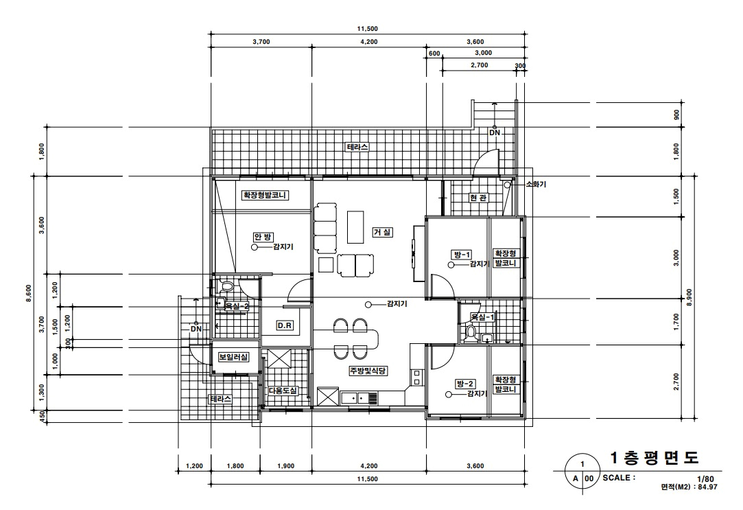
- 대지면적: 495㎡
- 건축면적: 97.19㎡
- 건폐율: 19.63%
- 용적률: 17.16%
- 용도: 단독주택
- 최고높이: 5.5m
- 기간: 2023.04 ~ 2023.07

제주도 대정읍 신도리 개인주택


농가주택 지원 사업은 30평이상의 토지를소유하고 농협에 작물수매를 하는등 일정한 자격 요건이 충족 되어질시 각 지자체에서 농협은행 또는 “농신보” 보증을 통하여 최대2억원 까지 지원을 받는 사업입니다.
금리1.7% ~ 2% 17년상환
그리고 출가한 자녀가족의 방문시 귀여운 손자 손녀를 마음껏 뛰놀게 할수 있는 거실과 외부 데크 등 전형적인 시골 할머니 할아버지 집의 구현을 함과 동시에
현대적인 감각을 중요시 하는 건축님의 요구를 최대한 반영하여 조화로운 컨셉으로 시공하였습니다.

클릭하시면 큰 화면의 갤러리로 확인 가능합니다.