제주도 두모리 전원주택
₩225,000,000 (30py)
- 소재지: 제주시 한경면 두모리
- 건축기법: 경량철골조
- 지역/지구: 자연녹지지역
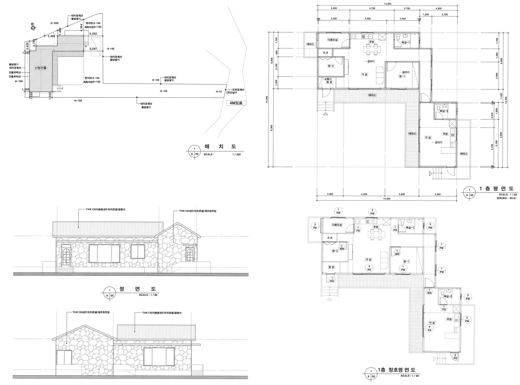
- 대지면적: 499.1758㎡
- 건축면적: A동 66.116㎡, B동 33.058㎡
- 건폐율: 19.96% (법정 20%)
- 용적률: 19.96% (법정 80%)
- 용도: 단독주택
- 층수: 지상1층
- 최고높이: 5.4m
- 건축주: 강ㅇㅇ
- 기간: 2021.06 ~ 2021.10

자루형 토지를 장점으로 탈바꿈 시킨 가장 제주스러운 건축

또한 생활에 불편함이 없으면서도 안거리, 밖거리라는 제주식 안채, 바깥채 개념이 도입된 가장 제주스러운 제주식 돌담집을 원하셨습니다.

장점 : 면사무소 500m, 마트 500m, 파출소도 가까워 생활과 보안 모든 조건에 부합
단점 : 입구가 긴 자루형 토지

안채는 폴딩도어 시공을 통해 채광의 극대화를 노렸고, 별도 공사로 데크를 활용한 한옥의 툇마루를 형상화 하여 폴딩도어를 개방하였을 때 툇마루 느낌을 주었습니다.

바깥채는 주거의 형태로 가고자 하였으나 실내 풀시설을 집어넣어 편의성을 증대하였습니다.
시크릿한 마당을 원하시어 겹담 시공으로 가드담을 시공 설치하였으며, 조경 경계돌담과 잔디를 기본 시공하였습니다.
제주스러운 제주 돌담집을 위하여 외부 벽채 마감을 자연석 마감시 붙이는 돌담은 상당히 (해배당 18만원) 고가이므로 전체 시공시 1,800원 이상 예상되므로 고심끝에 붙이는 돌담이 아닌 쌓는 외담의 형식을 선택하여 시공비를 1/3로 줄일 수 있어 건축주의 높은 만족도를 끌어내었습니다.
지붕자재는 징크마감재를 원하셨으나 아직 20년이 채 안된 마감재이므로 검증되지 않았기에 포스코 정품 S골강판이 40년 이상의 내구성을 인증받았고, 제주스러운 분위기에 가장 적합한 지붕 자재라 판단하여 사용을 권장드려 시공하였습니다.

서비스로 제주 항아리 제공(30만 원 상당) 하였습니다.

클릭하시면 큰 화면의 갤러리로 확인 가능합니다.